Millworkers often face significant challenges when working with external DRAFTING VENDORS, especially if those vendors aren't deeply familiar with the practical side of Millwork Fabrication.

Here's a list of the most common challenges millworkers experience:

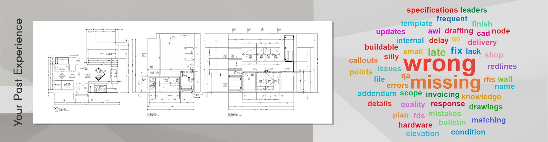
Drawings Not Buildable

Example: A vendor shows a 1/4" solid wood face frame joint with no allowance for seasonal expansion or glue strength.

Incomplete / Wrong details

A cabinet interferes with a electrical panel not shown in the architectural file.

Lack of AWI Knowledge

Drafting based solely on architectural drawings, without real-world verification.

Quality Issues

The shop spends extra hours just cleaning the drawings to make them usable.

Silly Mistakes

Reusing details or blocks from previous jobs without adjusting to new specs.

Frequent RFIs

Millworkers waste time clarifying details that should've been resolved in the drawing set.

Late Delivery

Delay in submitting within the agreed timeline.

Late Invoicing

Invoices sent after expected billing cycle.

Delay Email Response

Unresponsive or slow communication impacting Project flow.

Missing Scope

Millwork Scopes not included in the deliverables.

No Internal QA/QC

Drawings are sent without proper Quality checks.

Missing Redlines

Architect Markups or Corrections not incorporated.

Missing FDs

Field Dimensions not incorporated.

Missing Bulletin/Addendum Updates:

Scopes not reflecting as per Bulletins/Addendums in the drawings.

Wrong Specifications

Wrong Equipment/ Plumbing Specification.

Wrong CAD File name

CAD files are not named as per Standards.

Wrong finish

Wrong Finish Tag.

Wrong Hardware

Hardware type, model, or location does not match Project Hardware Specs.

Plan and Elevation not matching

Inconsistencies between Plans and Elevation views.

Missing Callouts

Arch. Scan References missing in the drawings.

Wrong Wall Condition

Incorrect wall types or conditions shown in drawings.

Fix Leaders

Leader lines are misaligned or not pointing to the correct element.

Fix Node Points

Node points are not accurately placed, causing alignment issues.

What Millworkers Really Want

Millworkers want Precise, Buildable, and Coordinated Drawings that:

  • Reflect real-world conditions
  • Respect their fabrication workflow
  • Reduce guesswork and avoid shop-floor improvisation

For all these problems, ARCHMAYA is the one Stop Solution.